Свяжитесь с нами
Если Вас заинтересовала наша продукция, Вы можете оставить заявку, заполнив небольшую форму на нашем сайте. Наши менеджеры свяжутся с Вами в ближайшее время.
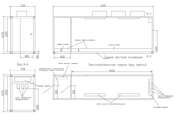
| Электроаппаратная кабина металлургического крана г/п140 т |
|
ООО «АРНИ» занимается разработкой и изготовлением электроаппаратных кабин (электропомещений) металлургических кранов. Компанией разработаны и изготовлены на собственном производстве электроаппаратные кабины для мостовых металлургических кранов.
Краны предназначены для загрузки сталеплавильных печей г/п. 140т. Особенностью данных электроаппаратных кабин (электропомещений) является усиленных металлический каркас и несущие элементы обшивки. Кабина выполняет требования:
|

