Свяжитесь с нами
Если Вас заинтересовала наша продукция, Вы можете оставить заявку, заполнив небольшую форму на нашем сайте. Наши менеджеры свяжутся с Вами в ближайшее время.
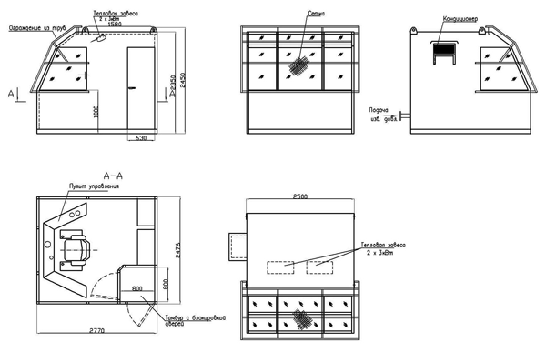
| Кабина КБ-1 для буровых установок |
|
Компания «АРНИ» занимается проектированием специальных кабин. ООО «АРНИ» разработал кабину оператора для буровых установок типа КБ-01.
Кабина оператора буровых установок устанавливается на бурильной платформе и служит для обеспечения комфортной и безопасной работы оператора.
|

Кабина КБ-1 для буровых установок